Contents

璞石酒吧:粗砺且舒适,朴实而自然

https://00-githubpages-1323260209.cos.ap-beijing.myqcloud.com/content/project-The%20Plain/01.webp
从树间看向主入口

地理位置:

璞石酒吧位于天津市蓟州区西井峪。蓟州区隶属于天津市,位于天津市最北部,其西北方与北京市相邻。西井峪古村落四面环山似在井中,因此得名。村落依山而建,整体保持着它形成时的风貌。历史上家家户户以石头垒屋、石头建屋。石头巷里,重重叠叠,错落有致。核心区留有50余座清末民初间保存完好的石头垒砌建筑,因此也被人们称为“石头村”。

https://00-githubpages-1323260209.cos.ap-beijing.myqcloud.com/content/project-The%20Plain/02.webp
日落时从街道看向北立面

需求:

业主寻得了村落中一处现存民居,希望将其改造为一座区别于村落中现有业态的建筑——酒吧。在业主的脑海中,这座建筑是具有一定艺术性的现代风格酒吧,同时设计上也需要结合西井峪石头村的当地元素——由页岩、白云岩砌成的石头墙。功能上,业主希望这座建筑以酒吧为主,辅以杂货铺、汉堡店、工作室、屋顶天台等功能区域。

https://00-githubpages-1323260209.cos.ap-beijing.myqcloud.com/content/project-The%20Plain/diagram_03.webp
功能分区
https://00-githubpages-1323260209.cos.ap-beijing.myqcloud.com/content/project-The%20Plain/14.webp
北立面局部
https://00-githubpages-1323260209.cos.ap-beijing.myqcloud.com/content/project-The%20Plain/07_%E4%BB%8E%E5%B1%8B%E9%A1%B6%E5%A4%A9%E5%8F%B0%E7%9C%8B%E5%90%91%E5%8D%97%E4%BE%A7%E5%B1%B1%E6%99%AF%20View%20from%20Rooftop%20to%20the%20South%20Mountain%20View%20%C2%A9%E6%9B%B9%E6%A2%A6%E5%8D%9A.webp
从屋顶天台看向南侧山景
https://00-githubpages-1323260209.cos.ap-beijing.myqcloud.com/content/project-The%20Plain/08_%E5%BA%AD%E9%99%A2%20Courtyard%20%C2%A9%E6%9B%B9%E6%A2%A6%E5%8D%9A.webp
庭院

概念:

在项目初期,我们从两方面进行了调研:自然和人。自然环境上,蓟州多山,单面山的山石肌理斜向排布,层层叠叠,宏伟壮观,是非常具有特色的自然景观;从人出发,蓟州人性格多爽朗豪迈,不管是城区还是乡村,都给人一种不拘小节的踏实感。综上,我们脑中的印象逐渐清晰:有石头有酒、爽朗与豪迈、粗砺且舒适、朴实而自然。

https://00-githubpages-1323260209.cos.ap-beijing.myqcloud.com/content/project-The%20Plain/10.webp
蓟州群山远景
https://00-githubpages-1323260209.cos.ap-beijing.myqcloud.com/content/project-The%20Plain/05.webp
东北角

设计重点:

- 设计思路:

  • 业主将酒吧取名为“璞石”,这与我们对于建筑的思考一拍即合。玉石的雕琢与建筑的生成过程具有一致性。玉的美就藏在了石中,空间的美就藏在了建筑中。雕琢原石露出玉质,散发光彩;切割建筑体块塑造室内空间,显现生命力。《庄子·山木》中说,玉雕的最高境界是“既雕既琢,复归于朴”,经过一番雕琢,最终要回到质朴中去。这一点也是我们设计思想的真实写照。我们希望这座建筑能够根植于当地环境,使用当地材料,做简单而有效的建筑表达。

https://00-githubpages-1323260209.cos.ap-beijing.myqcloud.com/content/project-The%20Plain/diagram_01.webp
概念示意图
https://00-githubpages-1323260209.cos.ap-beijing.myqcloud.com/content/project-The%20Plain/02_%E8%A5%BF%E5%8C%97%E8%A7%92%20Northwest%20View%20%C2%A9%E6%9B%B9%E6%A2%A6%E5%8D%9A.webp
西北角
https://00-githubpages-1323260209.cos.ap-beijing.myqcloud.com/content/project-The%20Plain/12_%E4%B8%BB%E5%85%A5%E5%8F%A3%E5%BB%8A%E9%81%933%20Entrance%20Gallery%20%C2%A9%E6%9B%B9%E6%A2%A6%E5%8D%9A.webp
主入口廊道

- 建筑结构:

  • 我们保留了建筑物原有的主要结构进行了改造更新。原建筑物为单层民居,建筑物围护结构拆除之后,有两个问题凸显出来:室内柱多,结构倾斜。首先,建筑物原结构为砖混结构,竖向承重构件为砖墙和构造柱,楼板为钢筋混凝土楼板。建筑物原功能为民居,开间与进深较为狭窄,拆除了一部分非承重墙体后结构密集,不适宜直接改造为开敞的公共空间使用;其次,因为乡村自建房原施工质量不算优秀,部分墙柱在多年使用之后存在一定程度的倾斜。鉴于此,我们采用了附加的钢结构体系对原有结构进行整体加固,消除了安全隐患,并尽可能移除大片连续的室内砖墙,减少原有墙体对于空间的切割,创造开敞并具有品质的空间。

https://00-githubpages-1323260209.cos.ap-beijing.myqcloud.com/content/project-The%20Plain/diagram_04.webp
结构加固前后对比
https://00-githubpages-1323260209.cos.ap-beijing.myqcloud.com/content/project-The%20Plain/Gif01.gif
建造过程

- 山的提炼:

  • 用什么能在建筑中体现蓟州的性格特质呢?我们从蓟州群山中找到了答案。单面山的山岩层层叠叠,一重又一重,形成了多样丰富的自然肌理。从自然肌理中提炼而出的折线具有动势且简练有力,这就是我们想要的答案。建筑北立面层层向街道倾斜形成动势,动势延伸到室内,包裹了被加固的建筑结构,并按照一定的角度保留动势带来的倾斜。

https://00-githubpages-1323260209.cos.ap-beijing.myqcloud.com/content/project-The%20Plain/diagram_02.webp
动势的引入
https://00-githubpages-1323260209.cos.ap-beijing.myqcloud.com/content/project-The%20Plain/15.webp
北立面局部夜景
https://00-githubpages-1323260209.cos.ap-beijing.myqcloud.com/content/project-The%20Plain/06.webp
空间概览
https://00-githubpages-1323260209.cos.ap-beijing.myqcloud.com/content/project-The%20Plain/04.webp
空间概览夜景

- 视觉延伸和心理空间:

  • 横平竖直的梁柱空间带给人规律感和秩序感,而保留了倾斜动势的梁柱空间,让处在其中的人们即使静止,视觉的触角也会向着因重叠而被遮挡的空间中延伸。这种动势不仅创造了更有趣味的物理空间,同时也扩张了人们的心理空间,激发了人们在空间中探索的欲望。

https://00-githubpages-1323260209.cos.ap-beijing.myqcloud.com/content/project-The%20Plain/09.webp
穿梭的空间体验
https://00-githubpages-1323260209.cos.ap-beijing.myqcloud.com/content/project-The%20Plain/20_%E6%8A%98%E7%BA%BF%E4%B8%8E%E5%90%A7%E5%8F%B0%E7%9A%84%E4%BA%92%E5%8A%A8%E5%85%B3%E7%B3%BB%20The%20Interaction%20Between%20the%20Bar%20and%20the%20Zigzag%20Line%20%C2%A9%E6%9B%B9%E6%A2%A6%E5%8D%9A.webp
折线与吧台的互动关系
https://00-githubpages-1323260209.cos.ap-beijing.myqcloud.com/content/project-The%20Plain/11.webp
折线与吧台的互动关系夜景

- 入口走廊和星光小径:

  • 自然光透过炫彩玻璃天窗点亮了入口走廊。阳光洒在墙壁上,两侧高低错落的镜面不锈钢板将光反射到廊道中,直射光与反射光交相投射,随着阳光的移动形成了多样化的光影效果。在走廊中行进的人们,望向镜面时也会因为角度的不同和镜面之间的多重反射,而看到不停变换的有趣景色。
  • 星光小径由矩形石板和当地岩板分段铺成,星光灯从入口走廊和临街平台延申至室内通道,它们将户外感和星光一并带入酒吧。夜幕降临,繁星点点。嵌入在小径中的星光灯闪闪烁烁,就像银河洒在地上的星星。人们走上小径,踩着星光进入酒吧。

https://00-githubpages-1323260209.cos.ap-beijing.myqcloud.com/content/project-The%20Plain/Gif02.gif
主入口走廊在一天之中的光影变化
https://00-githubpages-1323260209.cos.ap-beijing.myqcloud.com/content/project-The%20Plain/Gif03.gif
星光小径示意图
https://00-githubpages-1323260209.cos.ap-beijing.myqcloud.com/content/project-The%20Plain/18_%E4%BB%8E%E6%98%9F%E5%85%89%E5%B0%8F%E5%BE%84%E4%B8%8A%E7%9C%8B%E5%90%91%E5%90%A7%E5%8F%B0%E5%A4%9C%E6%99%9A%20View%20from%20Starpath%20to%20the%20Bar%20Counter%20at%20Night%20%C2%A9%E6%9B%B9%E6%A2%A6%E5%8D%9A.webp
从星光小径上看向吧台
https://00-githubpages-1323260209.cos.ap-beijing.myqcloud.com/content/project-The%20Plain/03.webp
空间概览夜景
https://00-githubpages-1323260209.cos.ap-beijing.myqcloud.com/content/project-The%20Plain/11_%E7%AB%99%E5%9C%A8%E5%B9%B3%E5%8F%B0%E4%B8%8A%E7%9C%8B%E5%90%91%E5%8C%97%E7%AB%8B%E9%9D%A2%E5%A4%9C%E6%99%AF%20North%20Facade%20View%20from%20Terrace%20at%20Night%20%C2%A9%E6%9B%B9%E6%A2%A6%E5%8D%9A.webp
站在平台上看向北立面夜景

- 就地取材与回收材料:

  • 就地取材与使用回收材料是我们的主要策略。在本地材料中,我们选用了石板、豆石、砾石。使用石板做室内外铺地和墙面、豆石做水洗石墙面、砾石做庭院铺地。回收材料中,我们选用了红酒色回收玻璃石和啤酒色晶玉玻璃。两者在制作过程中都采用了一定比例的废旧酒瓶,经过高温融化或高温压制工艺,赋予回收材料新的肌理,物尽其用。而这些玻璃在室内都与灯光结合出现,暖光透过红酒色与啤酒色的玻璃散射到室内,使整个空间沉浸在舒适而沉醉的氛围中。

https://00-githubpages-1323260209.cos.ap-beijing.myqcloud.com/content/project-The%20Plain/12.webp
红酒色玻璃石细部
https://00-githubpages-1323260209.cos.ap-beijing.myqcloud.com/content/project-The%20Plain/13.webp
啤酒色晶玉玻璃细部
https://00-githubpages-1323260209.cos.ap-beijing.myqcloud.com/content/project-The%20Plain/17.webp
从玻璃石笼看向舞台

结语:

对于我们而言,这座建筑既是我们对乡村建筑改造更新的一次重要尝试,又凝结了我们对蓟州的情感以及项目中各方参与者的用心。希望这座建筑能够在未来的生命历程中让西井峪变得更加有趣。

https://00-githubpages-1323260209.cos.ap-beijing.myqcloud.com/content/project-The%20Plain/18.webp
西北角夜景

技术图纸:

https://00-githubpages-1323260209.cos.ap-beijing.myqcloud.com/content/project-The%20Plain/%E4%B8%80%E5%B1%82%E5%B9%B3%E9%9D%A2%E5%9B%BE%20First%20Floor%20Plan%20%C2%A9%E6%9B%B9%E6%A2%A6%E5%8D%9A.webp
一层平面图
https://00-githubpages-1323260209.cos.ap-beijing.myqcloud.com/content/project-The%20Plain/%E4%BA%8C%E5%B1%82%E5%B9%B3%E9%9D%A2%E5%9B%BE%20Second%20Floor%20Plan%20%C2%A9%E6%9B%B9%E6%A2%A6%E5%8D%9A.webp
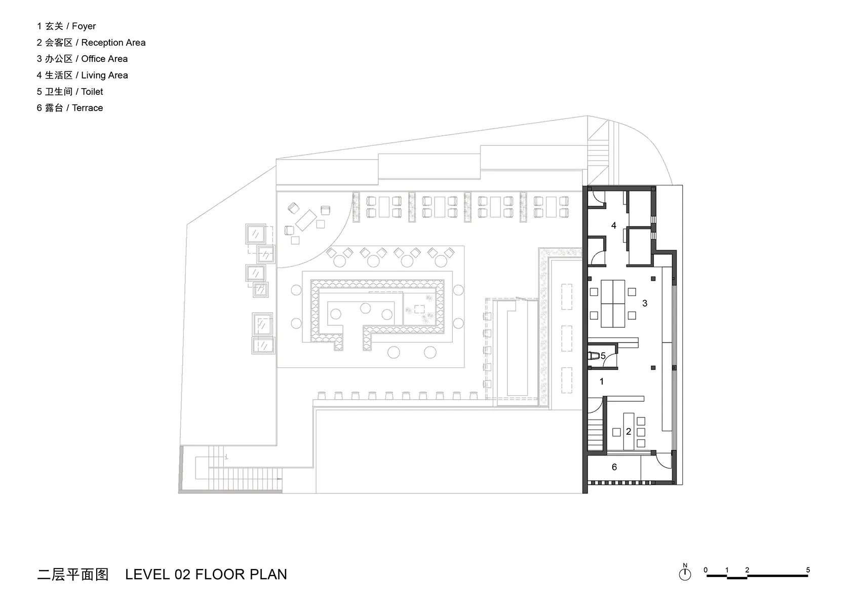
二层平面图
https://00-githubpages-1323260209.cos.ap-beijing.myqcloud.com/content/project-The%20Plain/%E5%B1%8B%E9%A1%B6%E5%B9%B3%E9%9D%A2%E5%9B%BE%20Rooftop%20Plan%20%C2%A9%E6%9B%B9%E6%A2%A6%E5%8D%9A.webp
屋顶平面图
https://00-githubpages-1323260209.cos.ap-beijing.myqcloud.com/content/project-The%20Plain/%E5%8C%97%E7%AB%8B%E9%9D%A2%E5%9B%BE%20North%20Elevation%20%C2%A9%E6%9B%B9%E6%A2%A6%E5%8D%9A.webp
北立面图
https://00-githubpages-1323260209.cos.ap-beijing.myqcloud.com/content/project-The%20Plain/%E4%B8%9C%E7%AB%8B%E9%9D%A2%E5%9B%BE%20East%20Elevation%20%C2%A9%E6%9B%B9%E6%A2%A6%E5%8D%9A.webp
东立面图